Liegenschaften und Grundstücksverkehr
Im Aufgabenkreis des Sachgebietes Liegenschaften liegen die An- und Verkäufe von Grundstücken.
Die Stadt Sonneberg bietet hier an:
- Wohnbaugrundstücke
- Immobilien
- Gewerbeflächen
Die Verwaltung von städtischen Liegenschaften stellt einen gesonderten Bereich des Sachgebietes dar. Hier handelt es sich um die Verwaltung und Bewirtschaftung stadteigener Immobilien sowie um die Ausübung der Rechte und Pflichten bezüglich der städtischen Grundstücke und Gebäude.
Grundstücke, Immobilien und Baugebiete

Interessenbekundungsverfahren Güterbahnhof

Immobilie Spechtsbrunn

Grundstücksangebot Hönbach

Grundstücksangebot Bettelhecken

Grundstücksangebot Am Sportplatz

Grundstücksangebot Wehdstraße

Grundstücksangebot Kirchstraße

Grundstücksangebot Alte Poststraße

Gewerbegrundstück Industriestraße

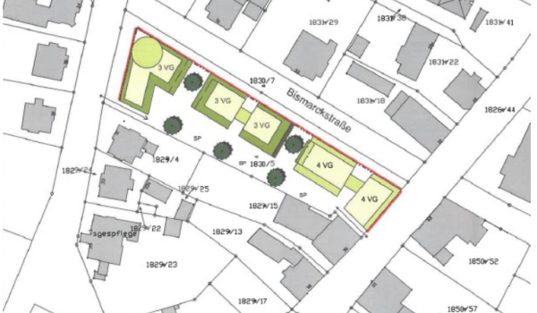
Geschosswohnungsbau Bismarckstraße

Baugebiet Neufang
Immobilienangebote Wohnungsbau GmbH Sonneberg
Bodenrichtwerte für Sonneberg
Bitte senden Sie uns das ausgefüllte Formular zur Bearbeitung zu:
Ihr Ansprechpartner für Grundstücksverkehr
Frau Engel
Sachgebietsleiterin Liegenschaften
- Tel 03675 880154
- Mail engel-v@stadt-son.de

Bildkennzeichnung
- Header-Bild - C. Heinkel
- Grundstücke, Immobilien, Baugebiete, Bodenrichtwerte - Bauamt